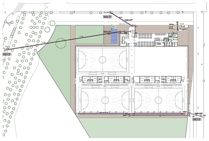
Hola, alguien tiene información sobre la construcción del Polideportivo que se va a construirse al lado del gimnasio Inacua.
También he leído que van a un parking gratuito.
Tenéis información sobre este tema.
Gracias
Hola, alguien tiene información sobre la construcción del Polideportivo que se va a construirse al lado del gimnasio Inacua.
También he leído que van a un parking gratuito.
Tenéis información sobre este tema.
Gracias
Gracias.
No me situó en el plano. Dónde estaría el gimnasio Inacua?